202505091547
For sale
Zadarska županija, Kolan
SP179
Apartment | 3-rooms | 81.67m2
498.000 EUR
Basic information
Transaction
For sale
Property
Apartment
Property type
3-rooms
Size
81.67m2
Region
Zadarska županija
City quarter
Kolan
About
Luxury Apartment S4 – Mandre, Island of Pag – First Row by the Sea
We present to you an exclusive residential project in the popular settlement of Mandre on the island of Pag (Croatia). This is an exceptional opportunity to purchase luxury apartments in the first row by the sea, combining modern architecture, thoughtful design, and an unbeatable location.
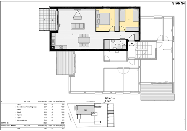
Apartment S4 with an area of 81.67 m2 including a balcony and loggia is located on the 1st floor of the building.
Layout of rooms:
- entrance hallway, 6.34 m2
- bathroom, 4.25 m2
- living room with kitchen, 42.37 m2
- room 1, 12.25 m2
- room 2, 10.50 m2
- loggia, 3.35 m2
- terrace, 5.44 m2
Total: 85.23 m2. The floor plan is available in the attachment.
Equipment:
Apartment S4 is equipped with double-glazed Schüco windows and shutters. High-quality Marazzi tiles are installed in the bathrooms.
Parking space:
Apartment S4 includes a private parking space; the price of the parking space is included in the price.
Location features:
- First row by the sea with an unbeatable view
- Mandre – a popular tourist settlement with beautiful beaches, a marina, and rich gastronomic offer
- Ideal for own residence or as a profitable tourist investment
- The building is designed with modern architecture, optimal sunlight exposure, and living comfort in mind.
For more information, contact agent Sara Ducman +386 40 500 055, sara@infinisproperties.si.
Welcome!
Add-ons
Communal arrangement
Yes
List of equipment
terasa
Parking space
Balcony
Air conditioning
Add-ons
Terrace
Parking space
Balcony
Luxury
First row by the sea
Next to the sea
Sea view
Nice view
Air conditioning
Close to nature
Very sunny
Quiet location
Tip-top
Connections
Electricity
Water
Sewage
Dovoljenja
Building permite
User license
Similar Real Estates
Our Services
Comprehensive services for all your real estate buying, selling and management needs.
For Property Owners
Discover Endless Possibilities with Infinis Properties
Real Estate Agent
Why a Real Estate Agent Is Key to a Secure Property Purchase
For Property Seekers
Find Your Dream Home with Infinis Properties – the real estate house.
For Investors
Partner with Infinis Properties for Successful Sales of Your Real Estate Projects
Property Valuation
Valuation for Smart Real Estate Decisions
Interior Design
Create Your Dream Home with Our Expert Interior Designers
Do you need personalized advice?
Our experts will be happy to help you.